Design
Architecture
Play
About
Design
Architecture
Play
About
CB
HEB ISD
NEWELL + MIDWAY ELEMENTARY SCHOOL
Site Plan
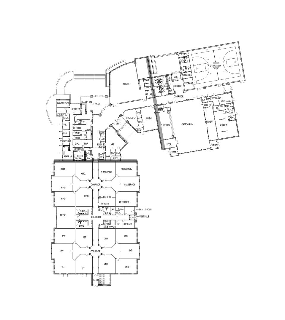
Floor Plans
Level 1
Level 2
Entrance Rendering - Option 1
Elevation Rendering - Option 1
Entrance Rendering - Option 2
Elevation Rendering - Option 2
You may also like
Molina High School
Architectural Documentation
Lift Academy
Design + Architectural Documentation
Aubrey ISD
Architectural Documentation + Environmental Graphics
↑
Back to Top